ホーム 売買物件 【朝来市不動産】和田山町枚田 中古戸建てのご紹介です。

【朝来市不動産】中古一戸建

【朝来市不動産】ファミリー物件

仲介

【朝来市不動産】和田山町枚田 中古戸建てのご紹介です。

価格
3,600万円
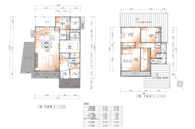
間取り
4LDK

物件詳細情報

物件名 朝来市和田山町枚田 所在地 兵庫県朝来市和田山町枚田
価格 3,600万円 交通 JR和田山駅2.7㎞(車6分) 和田山IC2㎞(車4分)
築年月 令和1年5月新築 間取り 4LDK
間取り詳細 構造 木造合金メッキ鋼板ぶき2階建
駐車場 有り(カーポート有・2台) 土地権利 所有権
地目 宅地 土地面積 345.13㎡(104.40坪)
建物面積 1階:74.76㎡(22.61坪) 2階:55.08㎡(16.66坪) 用途地域 準工業地域
建ぺい率 60% 容積率 200%
接道状況 全面公道 上水道 公営水道
下水道 公共下水 ガス
現況 居住中 引渡 相談
小学校区 枚田小学校(450m・徒歩6分) 中学校区 和田山中学校(1.5㎞・自転車6分)
設備 ・オール電化・摩擦減振設置・24時間空調システム 備考

物件周辺の地図

兵庫県朝来市和田山町枚田1041

この物件へのお問い合わせ

物件内覧をご希望のお客様にはご指定場所(自宅送迎・最寄り駅・目印がある場所など)での待ち合わせからのご案内も対応いたします。

    お問い合わせについて

    お名前【必須】

    フリガナ【必須】

    メールアドレス【必須】

    お電話番号【必須】

    郵便番号

    ご住所

    お問い合わせ内容【必須】

    物件内覧をご希望のお客様にはご指定場所(自宅送迎・最寄り駅・目印がある場所など)での待ち合わせからのご案内も対応いたします。